設備充実のハイグレード分譲賃貸マンション ペット飼育可能
京都の中心部の分譲賃貸です。阪急・市営地下鉄烏丸線・東西線の3アクセスが可能。浴室乾燥、追焚、床暖房など室内だけでなく、宅配ボックスなど共有部分も充実の設備。小型犬もご相談可能です。
お問い合わせ番号:HNR0000147263 情報公開日:2026-03-15(仲介)










































バストイレ別
室内洗濯機設置可
独立洗面台
ガスキッチン
オートロック
収納
ペット相談
| 契約期間 | 2年 |
|---|---|
| 更新料 | 新家賃0.5ヶ月分 |
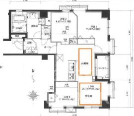
| 面積 | 72 m2 |
| 開口向き | 東 |
| 間取詳細 | 洋室8×洋室5.3×洋室4.4×LDK15.3 |
| 現状 | 改装中 |
| 駐輪場 | 有:バイク不可 |
| 駐車場 | 無 |
| 交通機関 |
|
| 周辺施設 |
|
| 設備・特徴 | バストイレ別・室内洗濯可・床暖房・独立洗面台・浴室乾燥機・追い焚き・ガスキッチン・2口コンロ・温水洗浄便座・収納・BS・CS・オートロック・TV付インターフォン・下駄箱・ベランダ・宅配BOX・エレベータ・ペット相談・3駅以上利用可・3沿線以上利用可・バス2路線・駅まで平坦・平坦地・閑静な住宅地・駅徒歩5分以内・築3年以内・駐輪場・2面採光・ディンプルキー・防犯カメラ・24時間緊急通報システム・セキュリティ会社加入済・LDK12畳以上・LDK15畳以上・全居室洋室・システムキッチン・対面式キッチン・オープンキッチン・アイランドキッチン・食器洗乾燥機・浄水器・脱衣所・浴室に窓・シャワー付洗面台・フローリング・全居室フローリング・クローゼット3ヶ所・玄関収納・BSCS・光ファイバー・CATVインターネット・ペット相談・敷金不要・礼金1ヶ月・家具付 |
| 学校 | 京都ホテル観光ブライダル専門学校(650m) 大原簿記法律専門学校(764m) 大原簿記法律専門学校京都校(764m) 京都YMCA国際福祉専門学校(140m) |
| 備考 |
水道費:実費 火災保険: 要 保証会社: 必加入 初期費用: ハウスクリーニング代(38,500円税込) 暮らしのサポート/2年(16,500円税込) 月額費用: 駐輪場(330円税込) 振り分け間取りで使いやすさ抜群 地下鉄・阪急利用可能 【民泊利用不可】 |
| その他 | 次回更新予定日:2026-03-29 ※ 図面と現状が異なる場合は現状を優先します。 |
四条店▶店舗詳細


0120-68-2355
【免許番号】京都府知事(7)10378号
【アクセス】地下鉄烏丸線四条駅・阪急烏丸駅 3番出口からすぐ
【営業時間】10:00~18:30
【定休日】水・日、年末・年始/GW/お盆
四条店 岡本
店長 宅地建物取引士
街中から郊外まで、お部屋からテナント、売買まで。物件探しを楽しんで頂けるように。何でもお客様のご希望を教えて下さい! 全力で皆さまのお力になります!