地下鉄五条駅徒歩7分、生活便利な好立地☆
スーパー・コンビニ・ドラッグストア徒歩5分圏内!
お問い合わせ番号:HNR0000184766 情報公開日:2026-02-02(仲介)








































バストイレ別
室内洗濯機設置可
独立洗面台
ガスキッチン
エアコン
オートロック
インターネット無料
角部屋
収納
| 契約期間 | 2年 |
|---|---|
| 更新料 | 新家賃1ヶ月分 |
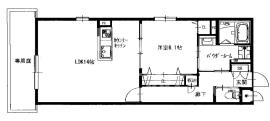
| 面積 | 55.68 m2 |
| 開口向き | 西 |
| 間取詳細 | 洋室6.1×LDK14 |
| 現状 | 完成予定:入居可能日 2026/02/15 |
| 駐輪場 | 有:バイク不可 |
| 駐車場 | 無 |
| 交通機関 |
|
| 周辺施設 |
|
| 設備・特徴 | バストイレ別・室内洗濯可・エアコン・独立洗面台・浴室乾燥機・追い焚き・ガスキッチン・2口コンロ・温水洗浄便座・収納・BS・インターネット無料・オートロック・TV付インターフォン・下駄箱・専用庭・角部屋・宅配BOX・駅まで平坦・駅徒歩10分以内・バス停徒歩3分以内・24時間ゴミ出し可・敷地内ごみ置き場・築2年以内・築3年以内・築5年以内・駐輪場・2面採光・庭・LDK12畳以上・全居室洋室・全居室6畳以上・システムキッチン・対面式キッチン・3口以上コンロ・グリル付・脱衣所・洗面所にドア・洗面化粧台・シャワー付洗面台・フローリング・全居室フローリング・玄関収納・礼金1ヶ月・仲介手数料半月分(居住用の個人契約に限る)・エアコン2台・エアコン全室 |
| 学校 | 龍谷大学大宮キャンパス(733m) 大原簿記法律専門学校(820m) 大原簿記法律専門学校京都校(820m) |
| 備考 |
水道費:実費 火災保険: 要 保証会社: 必加入 初期費用: 退去時清掃費(44,000円税込) 月額費用: Dプロテクト(1,500円) 【民泊利用不可】 |
| その他 | 次回更新予定日:2026-02-16 ※ 図面と現状が異なる場合は現状を優先します。 |
四条店▶店舗詳細


0120-68-2355
【免許番号】京都府知事(7)10378号
【アクセス】地下鉄烏丸線四条駅・阪急烏丸駅 3番出口からすぐ
【営業時間】10:00~18:30
【定休日】水・日、年末・年始/GW/お盆
四条店 岡本
店長 宅地建物取引士
街中から郊外まで、お部屋からテナント、売買まで。物件探しを楽しんで頂けるように。何でもお客様のご希望を教えて下さい! 全力で皆さまのお力になります!