お問い合わせ番号:HNR0000182144 情報公開日:2026-02-06(仲介)































バストイレ別
室内洗濯機設置可
独立洗面台
IHクッキングヒーター
エアコン
収納
ロフト
| 契約期間 | 2年 |
|---|---|
| 更新料 | 無 |
| 面積 | 47.7 m2 |
| 開口向き | 南 |
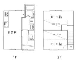
| 間取詳細 | |
| 現状 | 応相談 |
| 駐輪場 | 無 |
| 駐車場 | 無 |
| 交通機関 |
|
| 周辺施設 |
|
| 設備・特徴 | バストイレ別・室内洗濯可・エアコン・独立洗面台・IHキッチン・2口コンロ・温水洗浄便座・収納・TV付インターフォン・下駄箱・ロフト |
| 学校 | 京都コンピュータ学院洛北校(636m) |
| 備考 |
水道費:実費 火災保険: 要 保証会社: 初期費用: 月額費用: 【民泊利用不可】 |
| その他 | 次回更新予定日:2026-02-20 ※ 図面と現状が異なる場合は現状を優先します。 |
出町柳店▶店舗詳細


0120-21-3325
【免許番号】京都府知事(7)10378号
【アクセス】京阪電車「出町柳駅」徒歩5分
【営業時間】10:00~18:30
【定休日】4月~12月の水曜日、年末・年始/GW/お盆
出町柳店 對馬(ツシマ)
店長 宅地建物取引士
1年間オーストラリアに滞在した経験を活かして、いろいろな方とふれあい、そのなかで素敵なお部屋をご紹介できればと思います。不動産以外のことでも結構です!なにかお困りの際は是非ご用命くださいませ!皆様のご来店心よりお待ちしております!
出町柳店 張
こんにちは!私はチョウです。香港から京都に来て住んでおり、二匹の可愛い猫と一緒に生活しています。猫が大好きで、カメラや写真撮影、登山も趣味です。長い休暇をとても楽しみにしています。どうぞよろしくお願いします!
出町柳店 玉木
中国出身、日本在住歴15年以上、京都在住10年の元留学生として、慣れない土地で適切な部屋を見つけるのは簡単ではないことを十分理解しています。私の経験とノウハウを活かして、これから京都で生活を開始される皆様のお役に立てれば幸いです。ご来店を心よりお待ちしております。 我曾经是一名来自中国的留学生,在日本生活了 15 年以上,在京都生活了 10 年,我深知在一个陌生的地方找到一个合适的房间并不容易。我希望通过自己的经验和专业知识,能够为在京都居住的各位以及即将在京都开始新生活的各位提供帮助。期待您的光临。