今出川通面す、飲食店跡地一棟貸物件
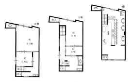
1F:40.15㎡、2F:40.15㎡、3F:40.15㎡、延べ120.45㎡
お問い合わせ番号:HNR0000130154 情報公開日:2026-03-22(仲介)



















































| 契約期間 | 10年 |
|---|---|
| 更新料 | ×(定期借家) |
| 面積 | 120.45 m2 |
| 開口向き | 北 |
| 間取詳細 | |
| 現状 | 応相談 |
| 駐輪場 | 無 |
| 駐車場 | 無 |
| 交通機関 |
|
| 周辺施設 |
|
| 設備・特徴 | |
| 学校 | 京都大学(715m) 京都府立医科大学(715m) 同志社女子大学今出川キャンパス(897m) 京都コンピュータ学院鴨川校(127m) |
| 備考 |
水道費:実費 火災保険: 要 保証会社: 必加入 初期費用: 月額費用: |
| その他 | 次回更新予定日:2026-04-05 ※ 図面と現状が異なる場合は現状を優先します。 |
テナント事業部▶店舗詳細


0120-68-2355
【免許番号】京都府知事(7)10378号
【アクセス】地下鉄烏丸線四条駅・阪急烏丸駅 3番出口からすぐ
【営業時間】10:00~19:30
【定休日】水・日、年末・年始/GW/お盆