フィットネスジムの居抜き物件ですが業種幅広く相談可能
飲食店もご相談下さい 造作譲渡費用 無償
お問い合わせ番号:HNR0000133448 情報公開日:2026-02-14(仲介)





| 契約期間 | 3年 |
|---|---|
| 更新料 | 新家賃1ヶ月分 |
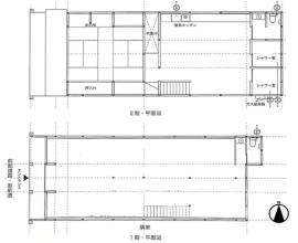
| 面積 | 160 m2 |
| 開口向き | 南 |
| 間取詳細 | |
| 現状 | 応相談 |
| 駐輪場 | 無 |
| 駐車場 | 無 |
| 交通機関 |
|
| 周辺施設 |
|
| 設備・特徴 | |
| 学校 | 京都バレエ専門学校(493m) 佛立教育専門学校(227m) |
| 備考 |
水道費:実費 火災保険: 要 保証会社: 初期費用: 月額費用: |
| その他 | 次回更新予定日:2026-02-28 ※ 図面と現状が異なる場合は現状を優先します。 |
テナント事業部▶店舗詳細


0120-68-2355
【免許番号】京都府知事(7)10378号
【アクセス】地下鉄烏丸線四条駅・阪急烏丸駅 3番出口からすぐ
【営業時間】10:00~19:30
【定休日】水・日、年末・年始/GW/お盆