お気に入り一覧を見る この物件にお問い合わせ

京都市上京区 今出川 の今出川焼肉居抜き店舗(1号室)の賃貸情報はハウスネットワーク!

今出川焼肉居抜き店舗 1号室

  • 概要
  • 地図
  • 設備/詳細
  • 焼肉店居抜き

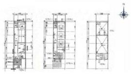
    1F:60.06㎡(店舗)、2F:50.82㎡(店舗)、3F:30.24㎡(倉庫)

    お問い合わせ番号:HNR0000183121  情報公開日:2025-10-23(仲介)

    275,000円(税込) (共益費:込)

    敷金

    0円

    礼金

    0円

    間取
    築年月 1975/11 築
    構造 鉄骨造
    階数/戸数 1階/3階建   1戸
    所在地 京都市上京区 堀之上町 
    • 部屋画像1
    • 部屋画像2
    • 部屋画像3
    • 部屋画像4
    • 部屋画像5
    • 部屋画像6
    • 部屋画像7
    • 部屋画像8
    • 外観画像1
  • 契約期間 10年
    更新料
    面積 141.12 m2
    開口向き
    間取詳細
    現状 応相談
    駐輪場
    駐車場
    交通機関
    • 京都市地下鉄烏丸線 今出川駅 徒歩11分
    周辺施設
    設備・特徴
    学校 同志社大学今出川キャンパス(752m) 裏千家学園茶道専門学校(407m)
    備考 水道費:実費
    火災保険: 要
    保証会社: 必加入
    初期費用:
    月額費用:
    その他 次回更新予定日:2025-11-06
    ※ 図面と現状が異なる場合は現状を優先します。

お問合せ店舗

    テナント事業部▶店舗詳細

    テナント事業部 店舗
    テナント事業部 スタッフ

     0120-68-2355

    【免許番号】京都府知事(7)10378号

    【アクセス】地下鉄烏丸線四条駅・阪急烏丸駅 3番出口からすぐ

    【営業時間】10:00~19:30

    【定休日】水・日、年末・年始/GW/お盆

おすすめ管理物件

おすすめ部屋画像1
京都市上京区小川通今出川上る中小川町
京都市地下鉄烏丸線 今出川駅 徒歩7分
1K / 61,000円
おすすめ部屋画像2
京都市上京区小川通今出川上る中小川町
京都市地下鉄烏丸線 今出川駅 徒歩7分
1K / 61,000円
おすすめ部屋画像3
京都市上京区新町室町の間今出川上ル畠山町
京都市地下鉄烏丸線 今出川駅 徒歩5分
1K / 49,000円
おすすめ部屋画像4
京都市上京区桝形通寺町東入三栄町
京阪鴨東線 出町柳駅 徒歩5分
1K / 56,000円